Product list產品列表
Customer service在線客服
產品展示
一、概述
YTD系列電動機適用于調壓速電梯,能滿足每小時180次頻繁起制動的使用工況。
該電動機的額定電壓為380V,額定頻率為50Hz。
該電動機具有兩套獨立的繞組。4極或6極繞組用于起動或運行;18極或24極繞組用于平層制動,在電梯安裝檢修時也可短時作低速起動和運行。
電動機在鼓風機工作的情況下,從冷態開始,18極或24極作短時運行的時間應控制在3min以內。
型號含義

二、結構簡介
YTD系列調壓調速用異步電動勸機制結構型式;
電動機為帶鼓風機強迫通風冷卻方式,符合IC06的規定;
電動機的外殼防護等級為防滴式,符合IP21S的規定;
電動機的安裝結構型式為底腳安裝:IM1002,具有兩個軸伸(雙軸伸);
電動機采用油環潤滑的滑動軸承;
電動機具有兩套獨立的繞組,絕緣等級為F級;
電動機繞組中埋置有熱敏電阻,其引出線接入出線盒內;
電動機與曳引機之間優先采用彈性聯結。
|
型 號 |
功率
/kW |
額定電壓/V |
額定頻率/Hz |
極數 |
同步
轉速
/(r/min) |
額定電流/A |
額定轉矩 |
電機轉
動慣量
/(kg·m2) |
堵轉轉矩 |
堵轉電流 |
轉差率(%) |
噪聲/dB(A) |
振動速度有效值
/(mm/s) |
重量/kg |
|
額定轉矩 |
額定電流 | |||||||||||||
|
YTD132-C4/18A |
3.2/0.7 |
380 |
50 |
4/18 |
1500/333 |
9 |
22.1 |
0.035 |
2.2/1.5 |
3.8/1.5 |
8/18 |
≦70 |
≦1.12 |
85 |
|
YTD132-C4/18A |
4/0.9 |
380 |
50 |
4/18 |
1500/333 |
11 |
27.7 |
0.035 |
85 | |||||
|
YTD132-C4/18C |
5/1.1 |
380 |
50 |
4/18 |
1500/333 |
13 |
34.6 |
0.05 |
110 | |||||
|
YTD132-C4/18C |
6.3/1.4 |
380 |
50 |
4/18 |
1500/333 |
16 |
43.6 |
0.05 |
110 | |||||
|
YTD132-C4/18D |
8/1.8 |
380 |
50 |
4/18 |
1500/333 |
19 |
55.4 |
0.062 |
130 | |||||
|
YTD160-C4/18C |
1./2.2 |
380 |
50 |
4/18 |
1500/333 |
23 |
69.2 |
0.11 |
170 | |||||
|
YTD160-C4/18D |
12.5/2.8 |
380 |
50 |
4/18 |
1500/333 |
29 |
86.5 |
0.14 |
200 | |||||
|
YTD200-C4/24C |
16/2.7 |
380 |
50 |
4/24 |
1500/250 |
38 |
111 |
0.35 |
320 | |||||
|
YTD200-C4/24C |
17/2.8 |
380 |
50 |
4/24 |
1500/250 |
38 |
117.6 |
0.35 |
320 | |||||
|
YTD200-C4/24D |
18.5/3 |
380 |
50 |
4/24 |
1500/250 |
39 |
128 |
0.43 |
390 | |||||
|
YTD200-C4/24D |
20/3.3 |
380 |
50 |
4/24 |
1500/250 |
47 |
138 |
0.43 |
390 | |||||
|
YTD200-C4/24E |
25/4.2 |
380 |
50 |
4/24 |
1500/250 |
58 |
173 |
0.52 |
450 | |||||
|
YTD200-C6/24C |
11/2.7 |
380 |
50 |
4/24 |
1000/250 |
30 |
114.2 |
0.35 |
320 |
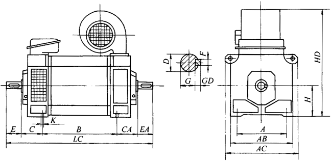
YTD系列調壓調速電梯電動機外形及安裝尺寸圖(IM1002)

型號
A
B
C
CA
D
E
EA
F×GD
G
H
K
LC
AB
AC
HD
YTD132-C…A
216
210
89
89
32
80
80
10×8
27
132
12
548
305
345
505
YTD132-C…C
260
598
YTD132-C…D
300
638
YTD160-C…C
254
284
108
108
38
33
160
15
660
360
400
590
YTD160-C…D
334
710
YTD200-C…C
318
350
133
133
55
110
110
16×10
49
200
19
836
440
480
770
YTD200-C…D
410
896
YTD132-C…E
480
966
一、概述
YTD系列電梯用三相異步電動機可用作各種類型電梯驅動之用,適用于干燥、通風、灰塵少的場所。
該電動機具有較高的堵轉轉矩、較低的堵轉電流和噪聲低等優點,是交流客梯、貨梯等各類電梯的理想牽引動力,尤其是YTD160中心高更適合家庭住宅交流客、貨梯上使用。
電動機的額定電壓為380V,額定頻率為50Hz,冷卻空氣最高容許溫度不超過40℃,海拔不超過1000m能正常運行。
電動機的工作定額為短時工作制:6極為30min,24極為3min。該單繞組雙速電動機(6/24):定子有6個出線端,以2U、2V、2W和1U、1V1W標明,分別供6極、24極接線之用。接線圖(見圖1)。

圖1 YTD系列雙速電梯用電動機接線圖

二、結構簡介
YTD系列電梯用電動機為籠型開啟式,外殼防護等級為IP01。
電動機的軸承H225mm,采用滾動軸承;H250mm采用滑動軸承。
電動機的機座和端蓋由鑄鐵制成,定子有兩套繞組,24極僅供電梯平層時使用,絕緣等級為B級。
電動機有主軸伸和附加軸伸兩個軸伸,附加軸伸供安裝控制器件和飛輪用。電動機的安裝型式有IMB3(臥式,機座帶底腳,端蓋無凸緣)、IMB5(有凸緣)兩種。
YTD335電梯電動機外殼防護等級為IP01;冷卻方式為獨立的鼓風機強迫通風,符合IPC06的規定;安裝結構型式為臥式,凸緣安裝IM3002。
YTD335電梯電動機適用于調壓調速電梯,能滿足每小時180次頻繁起制動的使用工況。
電動機的絕緣等級為F級,電動機的繞組中埋置有熱敏電阻,其引出線接入出線盒內YTD160S~250L3(4/16、6/24極)數據表
|
型 號 |
極數 |
額定
功率
/kW |
額定
電流
/A |
額定
轉速
/(r/min) |
效率
(%) |
功率因數 |
堵轉電流 |
堵轉轉速 |
轉差率
(%) |
重量/kg |
外形尺寸/mm | ||
|
額定電流 |
額定轉矩 |
長 |
寬 |
高 | |||||||||
|
YTD160S-6/24 |
6 |
3.2 |
8.8 |
930 |
78 |
0.70 |
4.5 |
3.1 |
— |
130 |
560 |
435 |
350 |
|
24 |
0.49 |
6.2 |
175 |
26 |
0.37 |
1.3 |
3.0 | ||||||
|
YTD160M-6/24 |
6 |
4.0 |
9.5 |
930 |
795 |
0.78 |
5 |
3.1 |
— |
151 |
590 |
435 |
350 |
|
24 |
0.67 |
8.4 |
175 |
38 |
0.41 |
1.4 |
3.0 | ||||||
|
YTD160L1-6/24 |
6 |
5.5 |
13.5 |
930 |
79.5 |
0.79 |
4.3 |
3.2 |
— |
182 |
655 |
435 |
350 |
|
24 |
1.0 |
12 |
175 |
41 |
0.31 |
1.3 |
2.4 | ||||||
|
YTD160L1-4/16 |
6 |
5.5 |
15.6 |
1420 |
78 |
0.69 |
6 |
3.8 |
— |
174 |
655 |
435 |
350 |
|
24 |
1.0 |
16.9 |
280 |
31 |
0.29 |
1.7 |
3.6 | ||||||
|
YTD160L2-4/16 |
6 |
6.4 |
18 |
1420 |
78 |
0.69 |
6 |
3.8 |
— |
194 |
655 |
435 |
350 |
|
24 |
1.2 |
19.8 |
280 |
31 |
0.29 |
1.7 |
3.6 | ||||||
|
YTD200M1-6/24 |
6 |
4 |
10 |
915 |
79.8 |
0.80 |
4.4 |
3.4 |
7.6/36.8 |
150 |
731 |
480 |
460 |
|
24 |
0.67 |
13 |
175 |
26.5 |
0.30 |
1.0 |
3.1 | ||||||
|
YTD200M2-6/24 |
6 |
5.5 |
13 |
925 |
81.9 |
0.79 |
4.9 |
3.5 |
7.5/36.1 |
173 |
731 |
480 |
460 |
|
24 |
1 |
16 |
190 |
34.3 |
0.28 |
1.0 |
3.2 | ||||||
|
YTD200M3-6/24 |
6 |
6.4 |
15 |
930 |
80 |
0.80 |
5.0 |
3.5 |
— |
205 |
731 |
480 |
460 |
|
24 |
1.2 |
19 |
200 |
34 |
0.28 |
1.1 |
3.2 | ||||||
|
YTD225M1-6/24 |
6 |
7.5 |
18 |
915 |
81.4 |
0.78 |
4.6 |
3.3 |
7.1/29.3 |
280 |
819 |
530 |
510 |
|
24 |
1.45 |
16 |
175 |
38.3 |
0.36 |
1.1 |
3.2 | ||||||
|
YTD225M2-6/24 |
6 |
11 |
25 |
920 |
82.6 |
0.79 |
4.9 |
3.4 |
6.8/24.4 |
320 |
819 |
530 |
510 |
|
24 |
2.3 |
21 |
175 |
42.4 |
0.39 |
1.0 |
2.9 | ||||||
|
YTD225M3-6/24 |
6 |
15 |
33 |
930 |
83 |
0.79 |
5.0 |
3.4 |
— |
340 |
819 |
530 |
510 |
|
24 |
3.4 |
27 |
180 |
42 |
0.39 |
1.0 |
2.8 | ||||||
|
YTD250M1-6/24 |
6 |
15 |
33 |
915 |
83.7 |
0.82 |
4.8 |
3.5 |
6.8/18.9 |
448 |
976 |
590 |
530 |
|
24 |
3.4 |
30 |
190 |
48 |
0.36 |
1.2 |
3.3 | ||||||
|
YTD250M2-6/24 |
6 |
19 |
41 |
925 |
84.9 |
0.82 |
5.1 |
3.7 |
— |
470 |
976 |
590 |
580 |
|
24 |
4.4 |
37 |
195 |
51.3 |
0.35 |
1.2 |
3.4 | ||||||
|
YTD250M3-6/24 |
6 |
22 |
48 |
925 |
85.1 |
0.82 |
4.8 |
3.3 |
— |
483 |
976 |
590 |
580 |
|
24 |
5 |
44 |
195 |
50.8 |
0.34 |
1.2 |
3.3 | ||||||
|
YTD250M4-6/24 |
6 |
25 |
54 |
925 |
86 |
0.82 |
4.8 |
3.3 |
— |
525 |
976 |
590 |
580 |
|
24 |
5.5 |
48 |
195 |
51 |
0.34 |
1.2 |
3.3 | ||||||
|
YTD225L1-6/24 |
6 |
15 |
34 |
925 |
82.7 |
0.80 |
168① |
3.7 |
— |
365 |
750 |
545 |
510 |
|
24 |
3.4 |
27 |
210 |
46.7 |
0.41 |
28① |
2.6 | ||||||
|
YTD225L2-6/24 |
6 |
18.5 |
42 |
930 |
82.7 |
0.81 |
203① |
3.4 |
— |
420 |
810 |
545 |
510 |
|
24 |
4.3 |
33 |
215 |
50.3 |
0.40 |
37① |
2.6 | ||||||
|
YTD250L1-6/24 |
6 |
15 |
33 |
915 |
83.7 |
0.82 |
159① |
3.5 |
— |
440 |
976 |
601 |
567 |
|
24 |
3.4 |
30 |
215 |
48 |
0.36 |
36① |
3.3 | ||||||
|
YTD250L2-6/24 |
6 |
19 |
41 |
925 |
84.9 |
0.82 |
212① |
3.7 |
— |
470 |
976 |
601 |
568 |
|
24 |
4.4 |
37 |
220 |
51.3 |
0.35 |
46① |
3.4 | ||||||
|
YTD225L3-6/4 |
6 |
22 |
48 |
925 |
85.1 |
0.82 |
230① |
3.3 |
— |
520 |
976 |
601 |
569 |
|
24 |
5.0 |
44 |
215 |
50.8 |
0.34 |
53① |
3.3 | ||||||
① 為起動電流實際值。
YTD335(4/24、6/24極)技術數據表
|
型號 |
功率
kW |
額定電壓/V |
頻率/Hz |
極數 |
同步轉速
/(r/min) |
額定電流/A |
額定轉矩
/(N·m) |
堵轉轉矩 |
堵轉電流 |
轉差率(%) |
振動速度有效值(mm/s) |
噪聲/dB(A) |
轉動慣量
(kg·m2) |
重量/kg |
|
額定轉矩 |
額定電流 | |||||||||||||
|
YTD335 |
7.5/1.8 |
380 |
50 |
6/24 |
1000/250 |
22/20 |
77.8 |
2.2/1.4 |
4.5/— |
8/20 |
1.12 |
>70 |
0.25 |
220 |
|
YTD335 |
11/2.7 |
6/24 |
1000/250 |
30/37 |
114.9 |
0.35 |
270 | |||||||
|
YTD335 |
15/2.5 |
4/24 |
1500/250 |
33/32 |
104 |
0.35 |
270 | |||||||
|
YTD335 |
17/2.8 |
4/24 |
1500/250 |
38/37 |
117.2 |
0.35 |
270 | |||||||
|
YTD335 |
18.5/3 |
4/24 |
10500/250 |
39/35 |
128 |
0.43 |
310 |
YTD系列外形尺寸圖(200~250)

(單位:mm)
|
型號 |
功率/kW |
A |
B |
C |
D |
E |
E2 |
E3 |
F |
G |
H |
K |
b |
b0 |
b1 |
b2 |
h |
L1 |
L2 |
|
YTD-200 |
4.0
5.5 |
318 |
267 |
133 |
38 |
80 |
120 |
26 |
12 |
32.8 |
200 |
ф20 |
380 |
28 |
290 |
190 |
460 |
601 |
130 |
|
YTD-225 |
7.5
11 |
356 |
311 |
149 |
42 |
90 |
120 |
26 |
12 |
36.8 |
225 |
ф20 |
430 |
31 |
320 |
215 |
510 |
687 |
132 |
|
YTD-250 |
15
22 |
406 |
406 |
168 |
48 |
110 |
120 |
26 |
14 |
42.2 |
250 |
ф24 |
490 |
31 |
345 |
250 |
580 |
836 |
140 |
YTD335型外形尺寸圖(IM3002)

| 頁次:1/1 每頁10條 共6條信息 分頁:[1] |
