9圖樣標注及應注明的尺寸數據
9.1在齒輪工作圖上應標注齒輪的精度等級和側隙系數。
標注示例:
a.齒輪的三個公差組精度同為7級,采用標準齒形的滾刀時,可不標注側隙系數。
b.齒輪第Ⅰ公差組精度為7級,第Ⅱ、Ⅲ公差組精度均為6級,采用標準齒形的滾刀時,可不標注側隙系數。
c.齒輪的三個公差組精度同為4級,側隙有特殊要求jn=0.10mn。
9.2需要在圖上標注的一般尺寸數據
9.2.1頂圓直徑及其公差
9.2.2分度圓直徑
9.2.3根圓直徑及其公差
9.2.4齒寬
9.2.5孔(軸)徑及基本要求
9.2.6定位面(或軸徑)及其要求
9.2.7 齒輪表面粗糙度
9.3需要用表格列出的數據
9.3.1法向模數
9.3.2齒數
9.3.3基本齒廓(標準代號)
9.3.4壓力角
9.3.5螺旋角
9.3.6螺旋方向
9.3.7精度等級
9.3.8齒輪副中心距及其極限偏差
9.3.9配對齒輪圖號及齒數
9.3.10檢驗項目代號及其公差(或極限偏差)值
9.4其他
根據齒輪的具體形狀及其技術條件的要求,還應給出其他一切在齒輪加工和測量時所必需的數據。
9.4.1對于軸齒輪以及軸、孔不作為定心基準的大齒輪,在切齒前作定心檢查用的表面最大徑向跳動量必須規定。
9.4.2應將齒坯的實際外圓尺寸打在非基準端面或軸徑上,以便按此值推算并檢查切齒深度。
9.4.3當采用設計形、設計齒線時應以圖樣詳述其參數。
9.4.4給出必要的技術條件
9.4.5齒輪滾刀應符合GB/T14348.1、GB/T14348.2及929的要求。
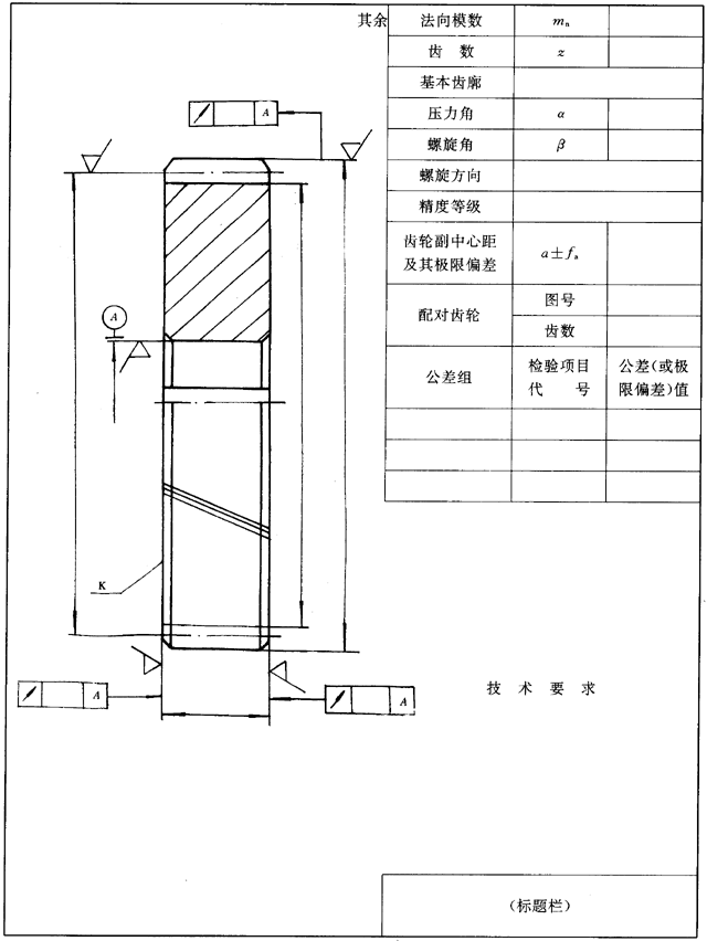
9.5示例
圖樣中的參數表一般放在圖樣的右上角。參數表中列出參數項目可根據需要增減,檢驗項目按功能要求而定。圖樣中的技術要求一般放在該圖的右下角,如下圖所示。
注:K面為基準面
表1 齒距累積公差FP及K個齒距累積公差FPK值 μm
|
L,mm |
精度等級 |
|
大于 |
到 |
4 |
5 |
6 |
7 |
8 |
|
- |
32 |
8 |
12 |
20 |
28 |
40 |
|
32 |
50 |
9 |
14 |
22 |
32 |
45 |
|
50 |
80 |
10 |
16 |
25 |
36 |
50 |
|
80 |
160 |
12 |
20 |
32 |
45 |
63 |
|
160 |
315 |
18 |
28 |
45 |
63 |
90 |
|
315 |
630 |
25 |
40 |
63 |
90 |
125 |
|
630 |
1000 |
32 |
50 |
80 |
112 |
160 |
|
1000 |
1600 |
40 |
63 |
100 |
140 |
200 |
|
1600 |
2500 |
45 |
71 |
112 |
160 |
224 |
|
2500 |
3150 |
56 |
90 |
140 |
200 |
280 |
|
3150 |
4000 |
63 |
100 |
160 |
224 |
315 |
|
4000 |
5000 |
71 |
112 |
180 |
250 |
355 |
|
5000 |
7200 |
80 |
125 |
200 |
280 |
400 |
注:①FPT和FPK按分度圓弧長L查表。
②除特殊情況外,對于FPK,K值規定取為小于z/6或z/8的最大整數
式中:d——分度圓直徑;mn——法向模數;
z——齒數;β——分度圓螺旋角。
表2齒圈徑向跳動公差Fr值 μm
|
分度圓直徑,mm |
法向模數mm |
精度等級 |
|
大于 |
到 |
4 |
5 |
6 |
7 |
8 |
|
- |
125 |
1.5~3.5
>3.5~6.3
>6.3~10
>10~16 |
9
11
13
- |
14
16
20
22 |
22
28
32
36 |
36
45
50
56 |
50
63
71
80 |
|
125 |
400 |
1.5~3.5
>3.5~6.3
>6.3~10
>10~16
>16~25 |
10
13
14
16
20 |
16
18
22
25
32 |
25
32
36
40
50 |
40
50
56
63
80 |
56
71
80
90
112 |
|
400 |
800 |
1.5~3.5
>3.5~6.3
>6.3~10
>10~16
>16~25
>25~40 |
11
13
14
18
22
28 |
18
20
22
28
36
45 |
28
32
36
45
56
71 |
45
50
56
71
90
112 |
63
71
80
100
125
160 |
|
800 |
1600 |
1.5~3.5
>3.5~6.3
>6.3~10
>10~16
>16~25
>25~40 |
-
14
16
18
22
28 |
-
22
25
28
36
45 |
-
36
40
45
56
71 |
-
56
63
71
90
112 |
-
80
90
100
125
160 |
|
1600 |
2500 |
1.5~3.5
>3.5~6.3
>6.3~10
>10~16
>16~25
>25~40 |
-
-
18
20
25
32 |
-
-
28
32
40
50 |
-
-
45
50
63
80 |
-
-
71
80
100
125 |
-
-
100
112
140
180 |
|
2500 |
4000 |
1.5~3.5
>3.5~6.3
>6.3~10
>10~16
>16~25
>25~40 |
-
-
-
22
25
32 |
-
-
-
36
40
50 |
-
-
-
56
63
80 |
-
-
-
90
100
125 |
-
-
-
125
140
180 |
表3公法線長度變動公差FW值 μm
|
L,mm |
精度等級 |
|
大于 |
到 |
4 |
5 |
6 |
7 |
8 |
|
- |
125 |
8 |
12 |
20 |
28 |
40 |
|
125 |
400 |
10 |
16 |
25 |
36 |
50 |
|
400 |
800 |
12 |
20 |
32 |
45 |
63 |
|
800 |
1600 |
16 |
25 |
40 |
56 |
80 |
|
1600 |
2500 |
18 |
28 |
45 |
71 |
100 |
|
2500 |
4000 |
25 |
40 |
63 |
90 |
125 |
表4齒距極限偏差±fpt
fpt值 μm
|
分度圓直徑,mm |
法向模數mm |
精度等級 |
|
大于 |
到 |
4 |
5 |
6 |
7 |
8 |
|
- |
125 |
1.5~3.5
>3.5~6.3
>6.3~10
>10~16 |
4.0
5.0
5.5
- |
6
8
9
10 |
10
13
14
16 |
14
18
20
22 |
20
25
28
32 |
|
125 |
400 |
1.5~3.5
>3.5~6.3
>6.3~10
>10~16
>16~25 |
4.5
5.5
6.0
7.0
9.0 |
7
9
10
11
14 |
11
14
16
18
22 |
16
20
22
25
32 |
22
28
32
36
45 |
|
400 |
800 |
1.5~3.5
>3.5~6.3
>6.3~10
>10~16
>16~25
>25~40 |
5.0
5.5
7.0
8.0
10
13 |
8
9
11
13
16
20 |
13
14
18
20
25
32 |
18
20
25
28
36
- |
25
28
36
40
50
63 |
|
800 |
1600 |
>3.5~6.3
>6.3~10
>10~16
>16~25
>25~40 |
6.0
7.0
8.0
10
13 |
10
11
13
16
20 |
16
18
20
25
32 |
22
25
28
36
45 |
32
36
40
50
63 |
|
1600 |
2500 |
>6.3~10
>10~16
>16~25
>25~40 |
8.0
9.0
11
14 |
13
14
18
22 |
20
22
28
36 |
28
32
40
50 |
40
45
56
71 |
|
2500 |
4000 |
>10~16
>16~25
>25~40 |
10
11
14 |
16
18
22 |
25
28
36 |
36
40
50 |
50
56
71 |
表5 齒向公差Fβ值
(一個軸向齒距內齒向公差Fβ值) μm
|
L,mm |
精度等級 |
|
大于 |
到 |
4 |
5 |
6 |
7 |
8 |
|
- |
40 |
5.5 |
7 |
9 |
11 |
18 |
|
40 |
100 |
8.0 |
10 |
12 |
16 |
25 |
|
100 |
160 |
10 |
12 |
16 |
20 |
32 |
|
160 |
250 |
12 |
16 |
19 |
24 |
38 |
|
250 |
400 |
14 |
18 |
24 |
28 |
45 |
|
400 |
630 |
17 |
22 |
28 |
34 |
55 |
注:一個軸向齒距內的齒向公差按軸向齒距查表。
表6軸線平行度公差
|
x方向軸線平行度公差fx=Fβ |
Fβ見表5 |
|
y方向軸線平行度公差fy=1/2Fβ |
表7 中心距極限偏差±fa
fa值 μm
表8 弦齒深極限偏差±Eh
Eh值 μm
|
分度圓直徑,mm |
法向模數mm |
精度等級 |
|
大于 |
到 |
4 |
5,6 |
7,8 |
|
- |
50 |
1.5~3.5
>3.5~6.3 |
10
12 |
12
15 |
15
19 |
|
50 |
80 |
1.5~3.5
>3.5~6.3
>6.3~10 |
11
13
15 |
14
16
19 |
17
20
24 |
|
80 |
120 |
1.5~3.5
>3.5~6.3
>6.3~10
>10~16 |
12
14
17
- |
15
18
21
- |
18
21
26
32 |
|
120 |
200 |
1.5~3.5
>3.5~6.3
>6.3~10
>10~16
>16~32 |
13
15
18
-
- |
16
19
23
-
- |
21
23
27
34
49 |
|
200 |
320 |
1.5~3.5
>3.5~6.3
>6.3~10
>10~16
>16~32 |
15
17
20
-
- |
18
21
24
-
- |
23
26
30
36
53 |
|
320 |
500 |
1.5~3.5
>3.5~6.3
>6.3~10
>10~16
>16~32 |
17
18
21
-
- |
21
23
26
-
- |
24
27
32
38
57 |
|
500 |
800 |
1.5~3.5
>3.5~6.3
>6.3~10
>10~16
>16~32 |
18
27
23
-
- |
23
26
28
-
- |
-
30
34
42
57 |
|
800 |
1250 |
>3.5~6.3
>6.3~10
>10~16
>16~32 |
-
23
25
- |
-
28
31
- |
34
38
45
60 |
|
1250 |
2000 |
>3.5~6.3
>6.3~10
>10~16
>16~32 |
25
27
-
- |
31
34
-
- |
38
42
49
68 |
|
2000 |
3150 |
>3.5~6.3
>6.3~10
>10~16
>16~32 |
27
30
-
- |
34
38
-
- |
-
45
53
68 |
|
3150 |
4000 |
>3.5~6.3
>6.3~10
>10~16
>16~32 |
30
36
-
- |
38
45
-
- |
-
49
57
75 |
注:對于音圓弧齒輪,弦齒深極限偏差取±Eh/0.75。
表9齒根圓直徑極限偏差±Edf
Edf值 μm
|
分度圓直徑,mm |
法向模數mm |
精度等級 |
|
大于 |
到 |
4 |
5,6 |
7,8 |
|
- |
50 |
1.5~3.5
>3.5~6.3 |
15
19 |
19
24 |
23
30 |
|
50 |
80 |
1.5~3.5
>3.5~6.3
>6.3~10 |
17
21
27 |
21
26
34 |
26
33
42 |
|
80 |
120 |
1.5~3.5
>3.5~6.3
>6.3~10
>10~16 |
19
23
29
- |
24
28
36
- |
29
36
45
57 |
|
120 |
200 |
1.5~3.5
>3.5~6.3
>6.3~10
>10~16
>16~32 |
22
26
32
-
- |
27
32
39
-
- |
33
38
49
60
90 |
|
200 |
320 |
1.5~3.5
>3.5~6.3
>6.3~10
>10~16
>16~32 |
24
29
34
-
- |
30
36
42
-
- |
38
42
53
64
94 |
|
320 |
500 |
1.5~3.5
>3.5~6.3
>6.3~10
>10~16
>16~32 |
27
32
38
-
- |
34
39
48
-
- |
42
50
57
68
98 |
|
500 |
800 |
1.5~3.5
>3.5~6.3
>6.3~10
>10~16
>16~32 |
32
36
41
-
- |
39
45
51
-
- |
-
53
60
75
105 |
|
800 |
1250 |
>3.5~6.3
>6.3~10
>10~16
>16~32 |
41
46
-
- |
51
57
-
- |
60
68
83
113 |
|
1250 |
2000 |
>6.3~10
>10~16
>16~32 |
48
-
- |
60
-
- |
75
90
120 |
|
2000 |
3150 |
>6.3~10
>10~16
>16~32 |
60
-
- |
75
-
- |
-
105
135 |
|
3150 |
4000 |
>10~16
>16~32 |
-
- |
-
- |
120
150 |
注:對一單圓弧齒輪,齒根圓直徑極限偏差取Edf/0.75。
表10接觸跡線長度和位置偏差
|
齒輪類型及檢驗項目 |
精度等級 |
|
4 |
5,6 |
7,8 |
|
雙圓弧齒輪 |
接觸跡線位置偏差 |
±0.11mn |
±0.15mn |
±0.18mn |
|
按齒長不少于工作齒長% |
第一條 |
95 |
90 |
90 |
85 |
80 |
|
第二條 |
75 |
70 |
60 |
50 |
40 |
|
單圓弧齒輪 |
接觸跡線位置偏差 |
±0.15mn |
±0.20mn |
±0.25mn |
|
按齒長不少于開作齒長% |
95 |
90 |
85 |
表11接觸斑點
|
齒輪類型及檢驗項目 |
精度等級 |
|
4 |
5 |
6 |
7 |
8 |
|
雙圓弧齒輪 |
按齒高不少于工作齒高 |
60 |
55 |
50 |
45 |
40 |
|
按齒長不少于工作齒長 |
第一條 |
95 |
95 |
90 |
85 |
80 |
|
第二條 |
90 |
85 |
80 |
70 |
60 |
|
單圓弧齒輪 |
按齒高不少于工作齒高 |
60 |
55 |
50 |
45 |
40 |
|
按齒長不少于開作齒長 |
95 |
95 |
90 |
85 |
,
80 |
對于齒面硬度≥300HBS的齒輪副,其接觸斑點沿齒高方向應為0.3mn。